Sites Classificados CM Casas CM Stand CM Emprego CM Convivio CM

Cortina Header
Imagem Header #1
Imagem Header #1
Imagem Header #2
Imagem Header #3
Imagem Header #4
Imagem Header #5

Moradias,  Para Comprar

Preço € 781000,00

Porto, Vila Nova de Gaia
Última Actualização há 

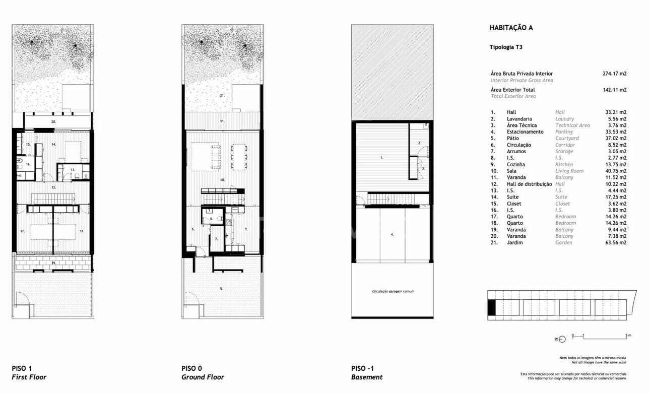
Moradia T3 em condomínio fechado - Arcozelo
Fração A - Nascente / Poente / SulO “Privilege Gaia” é um projeto inovador e inspirador que une arquitetura vanguardista à harmonia da natureza.São 16 moradias de estilo minimalista, definidas por linhas simples, espaços amplos e abertos, com 3 quartos e varandas com grandes janelas que proporcionam uma abundante entrada de luz natural. As moradias contam ainda com zona de lavandaria independente, arrumos e estacionamento privativo.Inspirado pelo ambiente natural e pela magnífica luz da costa atlântica, o Privilege Gaia nasce para oferecer um estilo de vida equilibrado entre conforto e tranquilidade.Localizado em Arcozelo, a apenas 10 km da cidade do Porto, o projeto encontra-se numa zona consolidada, rodeada de praias, parques, campos de golfe, e com todos os serviços essenciais ao dia a dia. Oferece ainda excelentes acessos às principais vias de comunicação, seja de carro ou de comboio.Possibilidade de instalação de piscina de 5mx4m, com estrutura em betão, por mais 30.000 € (sem aquecimento e, sem bomba de calor).Privilege Gaia é um lugar para viver... e para sonhar. InfraestruturasEspaços exteriores e confortoJardim privativoZona verde espaçosaEstacionamento privadoInfraestrutura preparada para futura instalação de piscinaPré-instalação para carregamento de viaturas elétricasFuncionalidade e arrumaçãoLavandariaArrumosArmários embutidosAcabamentos e equipamentos de qualidadePavimento multicamadas com acabamento em madeira nobreTetos falsos em gesso cartonado com iluminação integradaEletrodomésticos de gama altaToalheiros elétricosConforto térmico e segurançaSistema de climatização com ar condicionadoBomba de calor aerotérmica para aquecimento de águasPorta de segurançaSistema de videoporteiroSistema integrado de controlo de iluminação e estoresProteção solar e privacidadeTelas interiores elétricas tipo “Blackout” com sistema de calhas nos quartosAcessibilidadesLigações rodoviárias e transportes públicosAcesso rápido à A29Estação Ferroviária de Miramar – 3 minCidade do Porto – 15 minPontos de interesse e lazerCapela do Senhor da Pedra – 5 minMiramar Golf Club – 4 minPassadiços da Ribeira do Espírito Santo – 2 minServiços de saúdeCentro Hospitalar Vila Nova de Gaia / Espinho – 9 minPredimed Imobiliária, Mediação Imobiliária, Lda.Avenida Brasil 43, 12º Andar, 1700-062 LisboaLicença AMI nº 22503Pessoa Coletiva nº 517 239 345Seguro Responsabilidade Civil: Nº de Apólice RC65379424 Fidelidade

Características / Descrição
  • Área Útil 179.23m2


Divisões
  • Quartos 3

  • Parqueamentos 2


Referência do Anúncio CM08956756IMO
casanova@predimed.pt

casanova@predimed.ptDenunciar Anúncio
Partilhe esta página
Anunciante Profissional

PREDIMED CASANOVA


Últimos anúncios Os 10 mais recentes

  • Emprego - Consultor Imobiliário, M/F  
  • Emprego - Pintor, M/F  
  • Diversos - Project Motor Racing PS5 
  • Moradias -   
  • Emprego - Motorista Táxi, M/F  
  • Emprego - Empregada de Balcão Pastelaria , M/F  
  • Emprego - COZINHEIRA/ AJUDANTE COZINHA, M/F  
  • Hotelaria e Restauração - AJUDANTA COZINHA, M/F  
  • Saúde e Beleza - PORTUGUESA MASSAGISTA DIPLOMADA 
  • Apartamentos -   
  • Moradias -   
  • Terrenos -