
Estado Novo
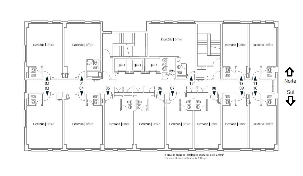
Área Útil 30.00m2


Preencha o seguinte formulário para contactar o vendedor. Enviaremos um e-mail com a sua mensagem.
O anúncio Escritórios, Para Alugar (Classificado em Escritório) foi adicionado à sua lista de Favoritos, para que o possa consultar posteriormente.
O que pretende fazer em seguida ?
Ver Favoritos Continuar a Navegar×Para adicionar o anúncio Escritórios, Para Alugar aos seus favoritos é necessário efectuar o login com a sua conta.
O que pretende fazer em seguida ?
Registo/Login Continuar a Navegar×